Budapest, III.kerület


 

Ingatlan adatai

Irányár: 143 000 000 Ft
Típus: lakás (tégla)
Kategória: eladó
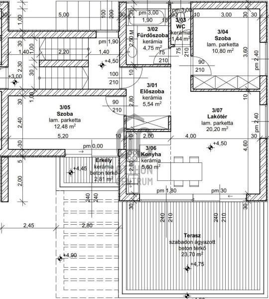
Alapterület: 61 m2
Fűtés: -
Állapota: -
Szobák száma: 3
Építés éve: 2025
Szintek száma: -
Telekterület: -
Kert mérete: -
Erkély mérete: 27 m2
Felszereltség: -
Parkolás: -
Kilátás: kertre néző
Egyéb extrák:  
-

Részletes leírás

Az ingatlan 61 m2-es ÚJÉPÍTÉSŰ és 3 szobás, az első emeleten helyzekedik el.Hivatalos elnevezése „Minimális energiaigényű”. Ezen ingatlanok üzemben tartási költségei, a mai technikai megoldások mellett, az elérhető legalacsonyabbak. Az ebbe a kategóriába tartozó ingatlanok messze túlteljesítik a „közel nulla energiaigény” építésügyi energetikai előírásait.Sok extrával felszerelt, okos otthon előkészítéssel rendelkező ingatlan, mely csendes, nyugodt, családias környezetben található. Nagy méretű terasz teszi még kellemesebbé a mindennapokat ebben az ingatlanban, melyet minőségi munkával építenek.A konyha olasz Veneta Cucine bútorzattal rendelkezik, a felszereltséghez pedig Samsung hűtő, valamint Miele mosogatógép és sütő tartozik, amelyek garantálják a megbízható és prémium minőségű használatot.A fürdőszobában Zen Cersanit kád, Hansgrohe zuhany, valamint RAK mosdó és WC található. A falakat Benjamin Moore (USA) festék borítja, az ajtók pedig Juga Doors termékek. A fürdőszobai bútorzatot a Wellis biztosítja, amely stílusos és praktikus kialakításáról ismert.Élvezze a nagy, panorámás teraszt, ahol a nap minden pillanatában gyönyörködhet a kilátásban.Az ingatlan első tulajdonosa lehet Ön, így személyre szabottan alakíthatja ki otthonát. A lakáshoz saját, kizárólagos használatú kert is tartozik, ideális hely a pihenéshez vagy családi összejövetelekhez.Különnyíló szobák, külön wc és fürdőszoba, hőszivattyús fűtés-hűtés rendszer és számos opcionálisan kérhető extra mint például Zigbee / Z-wave alapú, csillagpontos villanyszereléssel kombinált okos otthon rendszer. Okos otthonba bevonható területek árnyékolástechnika (redőnyök és zsaluzia), szekunder köri fűtés/hűtés rendszer, légtechnika (központi szellőztetési rendszer integrációja), világítástechnika (villanykapcsolók integrációja), kert öntözőrendszer, szobánkénti hőmérséklet szabályozási lehetőség, motoros szelepekkel, csapadékvíz tárolására szolgáló zárt tároló építése, locsoló rendszerrel történő integrációval, melyek tovább tudják fokozni ezen ingatlan nyújtotta kényelmet.Ez a csendes, intim társasház tökéletes választás azoknak, akik értékelik a privát, mégis könnyen megközelíthető otthont. A környék ideális a pihenésre, feltöltődésre. A zöld, friss levegős, madárcsicsergős környezetnek köszönhetően magas minőségű életmódot élhetünk. Pár perc sétatávolságra található vonat és buszmegálló.Hivatalos elnevezése „Minimális energiaigényű”. Ezen ingatlanok üzemben tartási költségei, a mai technikai megoldások mellett, az elérhető legalacsonyabbak. Az ebbe a kategóriába tartozó ingatlanok messze túlteljesítik a „közel nulla energiaigény” építésügyi energetikai előírásait.Egyedi igényekre szabott lakáshitelekkel állunk rendelkezésére.Bankfüggetlen Hitelcentrumunk az országban elérhető összes bank és hitelintézet ajánlatát versenyezteti az Ön számára díjmentesen.Munkatársaink nagy szakmai tapasztalattal, teljes körű CSOK PLUSZ és OTTHON START PROGRAM ügyintézéssel várják Önt előre egyeztetett időpontban akár a normál munkaidő után is.Bővebb információért és a megtekintéssel kapcsolatban hívjon bizalommal!

 Hirdető adatai

Hirdető neve: Otthon Centrum
Kapcsolattartó: Simon Nikolett
Hirdető telefonszáma: +36 70 388 5956
Honlap: -