Budapest, VI.kerület


 

Ingatlan adatai

Irányár: 450 000 Ft/hó
Típus: lakás (tégla)
Kategória: kiadó
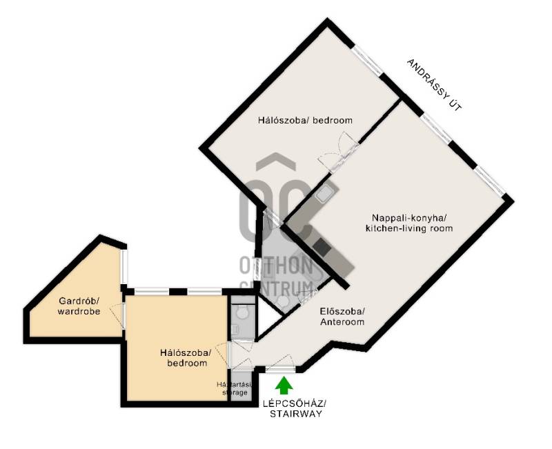
Alapterület: 89 m2
Fűtés: gáz (cirko)
Állapota: -
Szobák száma: 3
Építés éve: -
Szintek száma: -
Telekterület: -
Kert mérete: -
Erkély mérete: -
Felszereltség: -
Parkolás: -
Kilátás: utcai
Egyéb extrák:  
-

Részletes leírás

Április 1-től NAPPALI + két külön nyíló hálószobás + gardróbszobás, dupla komfortos lakás KIADÓ az Andrássy úton. A lakás modern, gépesített konyhával ellátott, egyébként bútorozatlan, így új lakója saját bútoraival rendezheti be (igény esetén a bebútorozásról is tudunk egyeztetni). A nappali és az egyik hálószoba utcai nézetű panorámás az Andrássy útra és az Oktogonra, ugyanakkor új fa nyílászáróinak köszönhetően csendes. A másik hálószoba és gardrób/ dolgozószoba egy kis udvarra néznek.Az ingatlan egy szép homlokzatú, rendezett állapotú, LIFTES társasház 3. emeletén helyezkedik el, zárt lépcsőházból nyílik.A lakás min. 1 évre kiadó, az első havi bérleti díj és 2 havi bérleti díjnak megfelelő kaució megfizetése után április 1-től átvehető. Dohányzás a lakásban nem engedélyezett, jól nevelt KISÁLLAT HOZHATÓ.Elhelyezkedéséből, méretéből és elosztásából adódóan ideális egy párnak, kisebb családnak vagy irodai célra. Amennyiben kérdése lenne a lakással kapcsolatban vagy szeretné megtekinteni kérem hívjon vagy írjon bizalommal!

 Hirdető adatai

Hirdető neve: Otthon Centrum
Kapcsolattartó: Csengeri Adrienn
Hirdető telefonszáma: +36 70 716 9971
Honlap: -