Pest megye, Dunakeszi


 

Ingatlan adatai

Irányár: 179 900 000 Ft
Típus: ház
Kategória: eladó
Alapterület: 130 m2
Fűtés: gáz (cirko)
Állapota: -
Szobák száma: 5
Építés éve: 2018
Szintek száma: -
Telekterület: 500 m2
Kert mérete: 500 m2
Erkély mérete: -
Felszereltség: -
Parkolás: -
Kilátás: -
Egyéb extrák:  
-

Részletes leírás

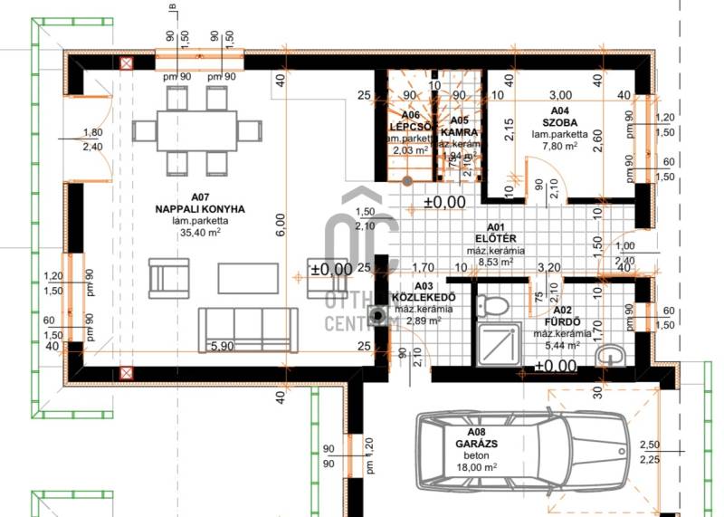
Modern, otthonos családi ikerház eladó Dunakeszin, a Malomárok Lakóparkban.Dunakeszi egyik legkedveltebb, nyugodt részén, a Malomárok Lakóparkban kínálunk megvételre egy 2018-ban épült, kiváló állapotú családi házat. Az ingatlan első tulajdonosoktól eladó.A ház bruttó 141 m², melyből 120 m² nettó lakótér, praktikus elrendezéssel, 5 szobával.Az ingatlan az ikerház másik felével kizárólag a garázsnál kapcsolódik.Földszint:•Vendégszoba / dolgozószoba•Tágas, világos amerikai konyhás nappali•Kamra•Fürdőszoba WC-velEmelet:•3 kényelmes hálószoba•Külön WC•Külön fürdőszobaMűszaki tartalom, extrák:•Gázkazános fűtés, padlófűtés és radiátorok kombinációjával•2 db hűtő-fűtő klímaberendezés•BWT vízlágyító rendszer•Minden nyílászárón alumínium redőny és szúnyogháló•Gondozott kert gyepszőnyeggel, növényekkel és automata öntözőrendszerrel•27 m²-es fedett terasz, ideális pihenéshez és a nyári grillpartykhoz•10 m²-es kerti faházKörnyezet, elhelyezkedés:•M2 és M0 autóút gyors elérhetőség•Belváros 20-25p alatt elérhető•Csendes, nyugodt lakókörnyezet•Közelben bevásárlási lehetőségek, iskola, óvoda a közelben•A Duna-part 5–10 perc sétára, kiváló kikapcsolódási lehetőségekkelA vételár tartalmazza a berendezés nagy részét a beépített bútorokon kívül is. (Játszótér, kerti sütögető stb.) Komoly szándék esetén ezek egyeztetésre kerülnek.Ez az ingatlan tökéletes választás azok számára, akik modern, jól felszerelt, gyorsan költözhető otthont keresnek Dunakeszin.

 Hirdető adatai

Hirdető neve: Otthon Centrum
Kapcsolattartó: Kalamár Balázs
Hirdető telefonszáma: +36 70 469 3606
Honlap: -