Budapest, XIX.kerület


Vas Gereben utca 

Ingatlan adatai

Irányár: 500 000 Ft/hó
Típus: kereskedelmi/ipari ingatlan
Kategória: kiadó
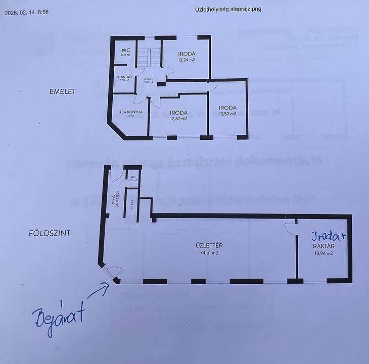
Alapterület: 157 m2
Fűtés: -
Állapota: -
Szobák száma: -
Építés éve: -
Szintek száma: -
Telekterület: -
Kert mérete: -
Erkély mérete: -
Felszereltség: -
Parkolás: -
Kilátás: -
Egyéb extrák:  
-

Részletes leírás

Kiadó üzlethelyiség – Budapest XIX. kerület, Vas Gereben utcaKiadó egy összesen 157 m² alapterületű, két szintes üzlethelyiség Budapest XIX. kerületében, a Vas Gereben utcában. Az ingatlan kiválóan alkalmas üzleti, irodai vagy szolgáltatói tevékenységre.A 101 m²-es földszinten egy tágas, világos üzlettér található, amelyet több nagyméretű ablak tesz különösen világossá és jól láthatóvá. Ezen a szinten helyet kapott továbbá egy raktárhelyiség és egy mosdó is.Az 56 m²-es emeleten két különálló irodahelyiség, egy teakonyha, egy mosdó, valamint egy kisebb raktár található, így az emelet ideális adminisztratív vagy irodai funkciók ellátására.Az ingatlan frissen beszerelt kazánnal, elektromos redőnyökkel, valamint minden helyiségben klímaberendezéssel felszerelt. A biztonságról riasztórendszer gondoskodik. Az üzlethez 2 db udvari kocsibeálló is tartozik.A helyiség a képeken látható bútorok nélkül is bérelhető, így az új bérlő teljes mértékben saját igényei és stílusa szerint alakíthatja ki a teret.Bérleti díj: 500.000 Ft / hóA rezsi minden fogyasztás esetén saját mérőórák alapján fizetendő.Az ingatlan azonnal birtokba vehető, 2 havi kaució és az aktuális havi bérleti díj megfizetésével.Környék és közlekedés:A Vas Gereben utca Kispest kedvelt, jól megközelíthető részén található. A környéken számos üzlet, szolgáltatás és lakóingatlan található, így az üzlethelyiség kiváló lehet például irodának, bemutatóteremnek vagy különböző szolgáltató tevékenység számára.A közlekedés kiváló: a közelben több busz- és villamosjárat is elérhető, valamint rövid idő alatt megközelíthető a 3-as metró, amely gyors kapcsolatot biztosít a belváros felé. Autóval is könnyen elérhető a város több pontja.

 Hirdető adatai

Hirdető neve: MPD Hungary Kft.
Kapcsolattartó: Studio Casa Kft.
Hirdető telefonszáma: +36202721450
Honlap: -