Budapest, VIII.kerület


 

Ingatlan adatai

Irányár: 119 990 000 Ft
Típus: lakás (tégla)
Kategória: eladó
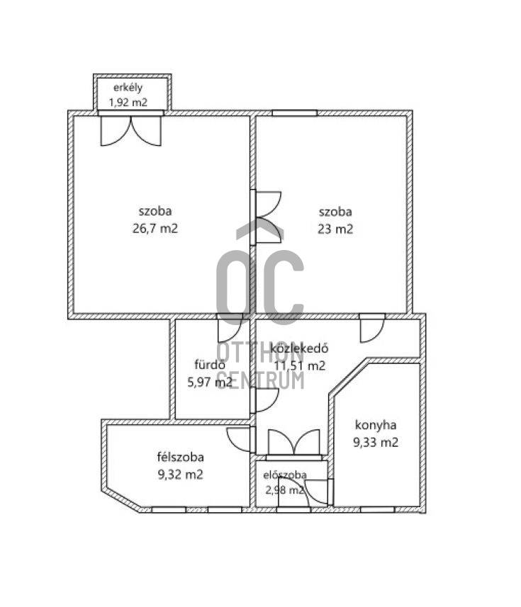
Alapterület: 90 m2
Fűtés: gáz (cirko)
Állapota: felújítást igényel
Szobák száma: 3
Építés éve: 1926
Szintek száma: -
Telekterület: -
Kert mérete: -
Erkély mérete: 2 m2
Felszereltség: -
Parkolás: -
Kilátás: utcai
Egyéb extrák:  
-

Részletes leírás

Képzelje el, hogy egy csendes, mégis központi elhelyezkedésű, felújítandó lakás várja Önt Budapest VIII. kerületében, a Tisztviselőtelepen. Ez a 90 négyzetméteres, három szobás ingatlan ideális választás lehet középkorú vásárlók számára, akik otthont keresnek, vagy befektetési céllal szeretnék bővíteni portfóliójukat. A lakás egy tehermentes ingatlan, amely lehetőséget kínál arra, hogy saját ízlésére formálja, hiszen a felújítás során Ön alakíthatja ki álmai otthonát. A lakás nagy belmagassággal rendelkezik, amely tágas érzetet kelt, és lehetőséget ad a kreatív megoldásokra. Az ingatlanhoz tartozik egy 2 négyzetméteres erkély, amely tökéletes helyszín a reggeli kávézásra vagy a pihenésre egy hosszú nap után. Az ingatlan fűtése gáz (cirko), amely gazdaságos megoldást kínál a téli hónapokban. A környék ellátottsága kiváló, hiszen a közeli üzletek, piacok és szolgáltatások minden igényt kielégítenek. A közlekedés szempontjából is kitűnő lehetőségeket kínál: a közelben található közlekedési csomópontok révén könnyen elérheti Budapest bármely pontját, legyen szó autós vagy tömegközlekedési megoldásokról. A csendes utcák és a barátságos szomszédság hozzájárulnak a nyugodt életvitelhez, miközben a belvárosi lakás előnyeit élvezheti. Tartozik az ingatlanhoz egy saját tároló illetve egy gépkocsi beállási lehetőség zárt körbekerített területen a ház udvarán. Az ingatlan elhelyezkedése miatt nemcsak lakóhelyként, hanem befektetési célra is ideális választás. A felkapott környék folyamatosan fejlődik, így a jövőbeni értéknövekedés garantált. A környék biztonságos, ami különösen fontos lehet családok számára, és a szomszédság barátságos légkört teremt. Ha Ön is szeretné felfedezni ezt a remek lehetőséget, ne habozzon kapcsolatba lépni velem. Szívesen válaszolok kérdéseire, és segítek Önnek abban, hogy megtalálja az ideális ingatlant. Az ingatlanpiac folyamatosan változik, így érdemes gyorsan dönteni, hogy ne maradjon le erről a kivételes ajánlatról. Kérem, ne habozzon, keressen bizalommal!

 Hirdető adatai

Hirdető neve: Otthon Centrum
Kapcsolattartó: Posváncz Katalin
Hirdető telefonszáma: +36 70 716 9671
Honlap: -