Budapest, XIV.kerület


 

Ingatlan adatai

Irányár: 99 000 000 Ft
Típus: lakás (tégla)
Kategória: eladó
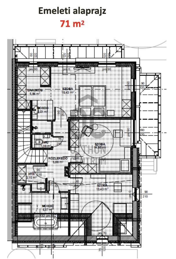
Alapterület: 73 m2
Fűtés: -
Állapota: -
Szobák száma: 3
Építés éve: 2025
Szintek száma: -
Telekterület: -
Kert mérete: -
Erkély mérete: -
Felszereltség: -
Parkolás: -
Kilátás: kertre néző
Egyéb extrák:  
-

Részletes leírás

Budapest XIV. kerületének egyik legkedveltebb, kertvárosi részén, a Zugló szívében, a Rákospatak vonzáskörzetében, egy forgalomtól mentes kis utcában kínálunk megvételre ezt a különleges ingatlant.A fiatal építész-tervező csapat egy igazán egyedi koncepciót álmodott meg: a klasszikus, eredeti homlokzati karakter harmonikusan ötvöződik a modern, letisztult és funkcionális formavilággal. A belsőépítész a családias, bensőséges hangulat megteremtésére helyezte a hangsúlyt, így az otthonok egyszerre sugároznak eleganciát és melegséget.A kialakításAz ingatlanban két különálló lakás kerül kialakításra.Emeleti lakás:- 73 m² alapterület- Világos, jól variálható belső terek- 70 nm saját kert- a szobaméretek jelen készültségi fokban még alakíthatóak- autóbeállóMűszaki tartalom:- Korszerű, energiatakarékos hőszivattyús hűtés–fűtés rendszer- Igényes, modern műszaki megoldások- Átgondolt térszervezésAz ingatlan jelenlegi készültségi szintjén még lehetőség van:- Burkolatok kiválasztására- Belső elrendezés igény szerinti alakításáraÍgy az új tulajdonos valóban saját igényeire szabhatja leendő otthonát.Rendelkezésre álló dokumentáció:Az építkezés teljes körű, rendezett műszaki háttérrel rendelkezik:- Egyszerű bejelentési dokumentáció lakóépület bővítésére (Zuglói főépítész által elfogadva, 2022. február)- Méretezett alaprajzok (pince, földszint, emelet)- Metszetrajzok, rétegrendek, anyaghasználati tervek- Épületgépészeti és épületvillamossági rendszerleírások- Teljes műszaki tervdokumentáció- Tartószerkezeti és tetőszerkezeti tervek- Vasalási tervek (alapozás, pincefödém, földszint feletti födém, tetőszerkezet)- Vasmennyiségi kimutatások- Anyagok- A pince- és földszinti födémhez a teljes betonvas mennyiség rendelkezésre állTervezett átadás 4-6 hónapon belül.A kivitelező számos referenciával rendelkezik.Ez az ingatlan ideális választás lehet:- többgenerációs családoknak,- befektetőknek (külön hasznosítható lakrészek),- vagy azoknak, akik modern, mégis otthonos környezetben szeretnének élni Zugló egyik legnyugodtabb utcájában.Ha egy különleges karakterű, személyre szabható otthont keres kertvárosi környezetben, ez az ingatlan kivételes lehetőség.

 Hirdető adatai

Hirdető neve: Otthon Centrum
Kapcsolattartó: Radnai Orsolya
Hirdető telefonszáma: +36 70 388 5711
Honlap: -