Budapest, III.kerület


 

Ingatlan adatai

Irányár: 349 000 000 Ft
Típus: ház
Kategória: eladó
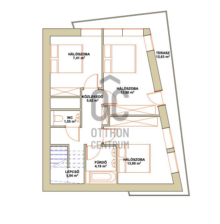
Alapterület: 162 m2
Fűtés: gáz (cirko)
Állapota: -
Szobák száma: 4
Építés éve: 2020
Szintek száma: -
Telekterület: 423 m2
Kert mérete: 423 m2
Erkély mérete: 64 m2
Felszereltség: -
Parkolás: -
Kilátás: -
Egyéb extrák:  
-

Részletes leírás

Finoman megkomponált otthon, ahol a fény és a csend egy nyelvet beszél. - Üdv itthon!RÖVID ÖSSZEFOGLALÓBudapest III. kerületében, a méltán kedvelt, és keresett Testvérhegy a Jablonka útján vált elérhetővé ez a 2020-ben épült családi ház. Az épület háromszintes, 162 m²-es, négyszobás elrendezésű, két fürdőszobával és egy vendégmosdóval, tágas terasszal és erkélykapcsolattal, valamint saját kerttel.Fűtését gázcirkó látja el padlófűtés és radiátor kombinációjával, a nyári komfortot klíma biztosítja.A házhoz 423 m²-es kert, és két garázshely tartozik, melynek árát a vételár tartalmazza, csak úgy, mint a beépített bútorzatot, és gépesítést.LOKÁICIÓ ÉS KÖRNYEZETA Jablonka út környéke a III. kerület egyik legkedveltebb családiházas övezete – közel a csodás hegyvidéki erdőkhöz, kiránduló helyekhez, - mint a Virányos-nyereg, a Vihar-hegyi kilátópont vagy a híres Guckler Károly-kilátó - mégis néhány percnyire a várostól.Napjaink legkeresettebb lokációi bírnak ezzel a két fontos tulajdonsággal. Az utóbbi évtizedben nem várt módon felértékelődött a természetközeli helyek értéke, azonban a modern életstílus megköveteli, hogy könnyen és gyorsan elérhető legyen a város annak minden szolgáltatásával.Ez a kombináció verhetetlen napjaink ingatlanpiacán, és a Jablonka út ennek egyik ékes példája.Néhány perc alatt elérhető az Árpád -híd és a Margit sziget, aReggel, amikor elindul az ember otthonról, egy ismerős arc köszön az utcán – ez a fajta közvetlenség jellemzi a környéket.A mindennapi élethez szükséges szolgáltatások (boltok, gyógyszertár, iskola, óvoda) minden itt van kézközelben.ÉPÜLETA 2020-ben épült ház kortárs, visszafogott eleganciát képvisel.Világos homlokzatát grafitszürke részletek és üvegkorlátok tagolják, a tágas nyílászárókon át pedig minden évszak a maga hangulatában írja újra az otthon képét.Tavasszal a kert ébredése az első fényekkel együtt indul: az ablakokon beáradó friss zöld illat a ház minden szintjét átjárja, a nappali teréből nézve a fák rügyezése lassan kibontott festménynek tűnik.Nyáron a terasz a nappali természetes folytatásává válik – a kert zöldje visszatükröződik az üvegfelületeken, a levegőben grillezés, friss fű és esti bor illata keveredik. Ilyenkor a ház valóban együtt él a kinttel.Ősszel az erdő közelsége új színt hoz: a domboldal aranyló levelei a homlokzatról visszaverődő fényekkel játszanak, a teraszról kilépve érezni a nedves föld és a lehulló levelek illatát – ez a ház ilyenkor különösen otthonos, bensőséges.Télen a panoráma megváltozik, a kert letisztul, a ház belsejéből pedig a kinti csend még mélyebbnek tűnik. A meleg fények, a padlófűtés finom hője és a közös nyugodt esték meghitt hangulatot teremtenek – ez az időszak, amikor az otthon szó valódi értelmet nyer, amire évekkel később is jó visszaemlékezni.Az épület minden részletében az arány és a funkcionalitás találkozik: a garázs két autó számára kínál fedett helyet, a kert pedig teraszosan követi a domboldalt, így a ház minden szintjén megmarad a kapcsolat a zölddel és a kilátással.A ház nemcsak egy hely, hanem egy évszakokon átívelő élmény, ahol a természet ritmusa és az emberi élet ritmusa egymásra hangolódik.AZ OTTHON BELSŐ VILÁGABelépve a térbe, az első benyomás a nyugalom és az arányok rendje.Világos tónusok, meleg fa felületek és finoman textúrált anyagok fonódnak össze, mintha minden részlet azt suttogná: „jó itthon lenni”.A földszint a családi élet természetes központja.A nappali, az étkező és a konyha egyetlen áramló térben kapcsolódik össze — ott, ahol az illatok, a fények és a nevetések találkoznak.A modern, beépített konyha a sötét és világos fa árnyalataival játszik, az étkezősziget körül pedig mindig történik valami: a reggeli készülődés izgalma, a délutáni beszélgetés biztonsága, közös vacsorák hangulata ad értelmet a funkcionalitásnak.A felső szint csodás panorámával és erkélykapcsolattal kényezteti a család minden tagját, itt három külön bejáratú hálószoba és két fürdőszoba kapott helyet.A gyerekszobákban van hely a rendnek és a játéknak is, szülői háló pedig a kert felé fordul — itt a csend nem üresség, hanem nyugodt megérkezés.A fürdőszobák márványhatású burkolatai és lágy fényei az esti rituáléknak ad letisztult, kellemes, tiszta teret.A padlófűtés és radiátor kombinációja télen finom, egyenletes meleget ad, a klíma pedig nyáron is hűvösen tartja a tereket. A gardrób és a háztartási helyiség csendben végzi a dolgát – támogatja a családot abban, hogy minden a helyén maradjon, miközben az élet zajlik körülötte.ÖSSZEGZÉS ÉS KAPCSOLATFELVÉTELEz az otthon a modern családi élet kényelmének esszenciája – egyszerre elegáns és természetes, praktikus és meghitt. Aki ide belép, az nemcsak házat lát, hanem egy olyan életteret, ahol minden részlet a kiegyensúlyozott életet szolgálja.Ha szeretné megtapasztalni, milyen érzés, amikor az otthon valóban az élet középpontja,keressen bizalommal, és szívesen bemutatom személyesen ezt a különleges házat a Jablonka úton.

 Hirdető adatai

Hirdető neve: Otthon Centrum
Kapcsolattartó: Török Dávid
Hirdető telefonszáma: +36 70 461 9106
Honlap: -