Pest megye, Érd


 

Ingatlan adatai

Irányár: 109 500 000 Ft
Típus: ház
Kategória: eladó
Alapterület: 107 m2
Fűtés: -
Állapota: új
Szobák száma: 4
Építés éve: 2026
Szintek száma: -
Telekterület: 730 m2
Kert mérete: 730 m2
Erkély mérete: 15 m2
Felszereltség: -
Parkolás: -
Kilátás: -
Egyéb extrák:  
-

Részletes leírás

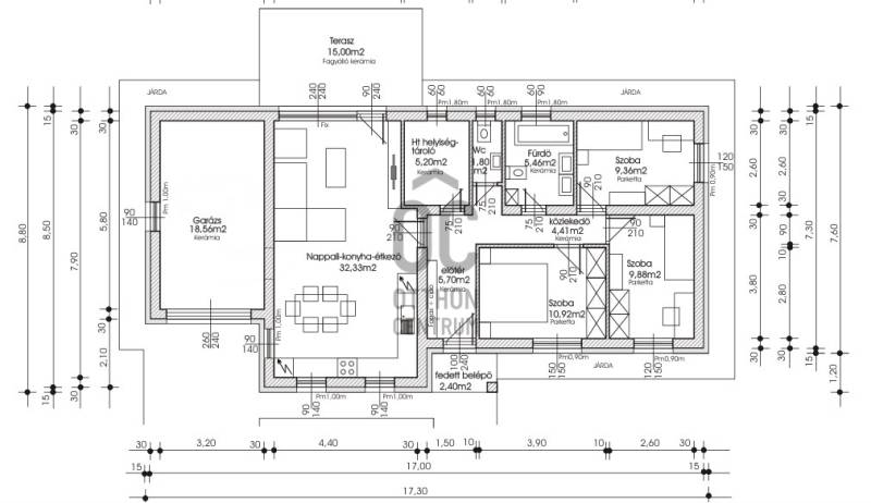
Érd egyik csendes, családi házas részén, a Fundoklia-völgy közvetlen közelében, mégis kiváló közlekedéssel, eladó egy modern technológiával épülő, energiatakarékos családi ház. Az M7-es autópálya és az InterSpar néhány perc autóval, így a természet és a városi kényelem tökéletes egyensúlya valósul meg.A 730 m²-es telken épülő otthon 107 m² hasznos alapterülettel, garázzsal és nappaliból nyíló terasszal készül. A praktikus alaprajz és a korszerű műszaki tartalom hosszú távon is kényelmes és gazdaságos otthont biztosít.Otthonos és jól átgondolt elrendezésA ház kialakítása ideális családok számára: tágas közösségi tér, külön hálószobák és praktikus kiszolgáló helyiségek.-107,10 m² hasznos alapterület-tágas 33,4 m²-es nappali–étkező–konyha-3 külön nyíló hálószoba-fürdőszoba WC-vel + külön vendég WC-háztartási helyiség / tároló-18,56 m²-es garázs-nappaliból megközelíthető terasz-rendezett, jól használható kert-Korszerű műszaki megoldásokMűszaki tartalom:-Porotherm 30 NF tégla falazat-15 cm külső hőszigetelés-hagyományos fa tetőszerkezet 15 cm üveggyapot szigeteléssel-háromrétegű hőszigetelt műanyag nyílászárók-6 légkamrás ablakok redőnnyel és szúnyoghálóval-10 kW-os Gree hőszivattyús rendszer padlófűtéssel-200 literes melegvíz-tároló-elektromos garázsajtó-riasztó- és klíma-előkészítés-H-tarifa előkészítés-3×25 A elektromos kapacitás-elektromos kiállások a kapuhoz és kültéri világításhozKülső kialakítás:A telek rendezett, az utcafronton zsalukő + fa kerítés, hátul drótkerítéssel körülhatárolva.Közművek és infrastruktúra:--3×25 A elektromos kapacitás-6 m³-es zárt szennyvíztároló-csapadékvíz ciszternába gyűjtveMiért jó választás?Az ingatlan jelenleg kb. 95%-os készültségi állapotban van, és várhatóan április közepén használatbavételi engedéllyel fog rendelkezni, így szinte azonnal birtokba vehető! Ez ritka lehetőség azok számára, akik nem szeretnének hosszú hónapokat várni egy új otthon elkészültére, mégis egy frissen épült, modern családi házba költöznének. Az ingatlan Otthon Start hitellel és CSOK+ finanszírozással is megvásárolható, így akár kedvezményes hitellel és támogatással is elérhetővé válhat új otthona Érd egyik nyugodt, természetközeli részén.Ha szeretné személyesen is megnézni ezt az ígéretes új otthont, keressen bizalommal!

 Hirdető adatai

Hirdető neve: Otthon Centrum
Kapcsolattartó: Antal Mónika
Hirdető telefonszáma: +36 70 461 9181
Honlap: -