Pest megye, Albertirsa


 

Ingatlan adatai

Irányár: 64 900 000 Ft
Típus: ház
Kategória: eladó
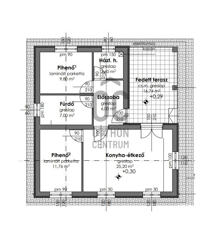
Alapterület: 63 m2
Fűtés: egyéb
Állapota: -
Szobák száma: 3
Építés éve: 2022
Szintek száma: -
Telekterület: 496 m2
Kert mérete: 496 m2
Erkély mérete: 16 m2
Felszereltség: -
Parkolás: -
Kilátás: -
Egyéb extrák:  
-

Részletes leírás

Albertirsán, csendes és nyugodt környezetben, a strandtól pár perces sétára kínálunk eladásra egy 3 éve épült, modern kialakítású családi házat.Az ingatlan alapterülete 63 négyzetméter, míg a telek mérete 496 négyzetméter, így bőséges teret biztosít a mindennapi élethez. A házban két hálószoba található, amely tágas nappalival és egy amerikai konyhával rendelkezik, ami lehetővé teszi a családi együttlétek és baráti összejövetelek kényelmes lebonyolítását. Az ingatlan jó állapotban van, így a felújításokkal nem kell időt eltölteni, azonnal költözhető. A fürdőszoba modern, és a klímaberendezés biztosítja a kellemes hőmérsékletet a nyári hónapokban. A tágas terasz, amely 16 négyzetméter nagyságú, ideális helyszín a reggeli kávézáshoz vagy a délutáni pihenéshez, miközben gyönyörködhet a környék panorámájában. Albertirsa csendes, nyugodt környéke tökéletes választás, ha szeretne elvonulni a város zajától, miközben minden fontos szolgáltatás könnyen elérhető. A település kiváló közlekedési lehetőségekkel rendelkezik, hiszen a közeli busz- és vonatmegállók révén Budapest és a környező városok könnyedén megközelíthetők. A környék biztonságos, családias légkörrel rendelkezik, így ideális helyszín lehet gyermekes családok számára is. A közeli iskolák, óvodák és boltok mind hozzájárulnak ahhoz, hogy az ingatlan környezete ideális legyen a mindennapi élethez. A természet közelsége pedig lehetőséget ad a szabadidős tevékenységekre, legyen szó sétáról, kerékpározásról vagy piknikezésről. A ház korszerű építési megoldásokkal készült, így alacsony fenntartási költséggel üzemeltethető, és hosszú távon biztosít kényelmes, otthonos életteret.Az ingatlan nem hitelezhető,tulajdoni lapon üdülőként van feltüntetve.Ha érdeklik az ingatlan részletei, vagy kérdései merülnének fel, ne habozzon bizalommal keresni! Szívesen állok rendelkezésére, hogy megválaszoljam kérdéseit, és segítsek Önnek megtalálni álmai otthonát vagy befektetési lehetőségét. Bávebb információval és megtekintéssel kapcsolatban várom hívását!

 Hirdető adatai

Hirdető neve: Otthon Centrum
Kapcsolattartó: Szoboszlai Katalin
Hirdető telefonszáma: +36 70 469 3221
Honlap: -