Budapest, VII.kerület


 

Ingatlan adatai

Irányár: 280 000 Ft/hó
Típus: lakás (tégla)
Kategória: kiadó
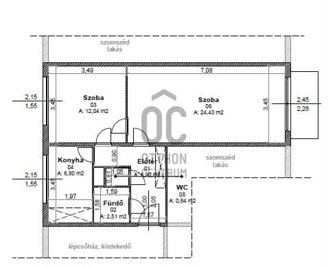
Alapterület: 75 m2
Fűtés: gáz (cirko)
Állapota: -
Szobák száma: 2
Építés éve: -
Szintek száma: -
Telekterület: -
Kert mérete: -
Erkély mérete: -
Felszereltség: -
Parkolás: -
Kilátás: udvari
Egyéb extrák:  
-

Részletes leírás

VII. kerületben, a Kertész utcában, liftes társasház 3. emeletén kiadásra kínálok egy 75 nm-es, 2 szobás, cirkófűtéses, bútorozatlan, udvari nézetű lakást.A lakás jó elosztású, csendes, rendezett társasházban található.Közös költség: 40 000 Ft/hó, amely tartalmazza a korlátlan vízfogyasztást, a felújítási alapot, a lift üzemeltetését és a szemétszállítást.A lakás hosszú távra kiadó.További információért kérem, keressen bizalommal.Egyedi igényekre szabott lakáshitelekkel állunk rendelkezésére.Bankfüggetlen Hitelcentrumunk az országban elérhető összes bank és hitelintézet ajánlatát versenyezteti az Ön számára díjmentesen.Munkatársaink nagy szakmai tapasztalattal, teljes körű CSOK PLUSZ és OTTHON START PROGRAM ügyintézéssel várják Önt előre egyeztetett időpontban akár a normál munkaidő után is.

 Hirdető adatai

Hirdető neve: Otthon Centrum
Kapcsolattartó: Szuromi Mirella
Hirdető telefonszáma: +36 70 716 8181
Honlap: -