Pest megye, Törökbálint


 

Ingatlan adatai

Irányár: 285 000 000 Ft
Típus: ház
Kategória: eladó
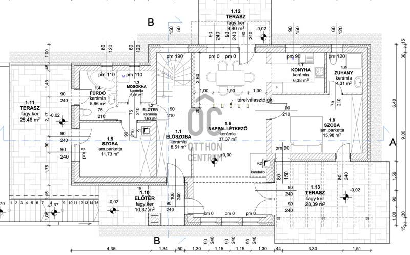
Alapterület: 190 m2
Fűtés: -
Állapota: -
Szobák száma: 4
Építés éve: 2018
Szintek száma: -
Telekterület: 1 340 m2
Kert mérete: 1 340 m2
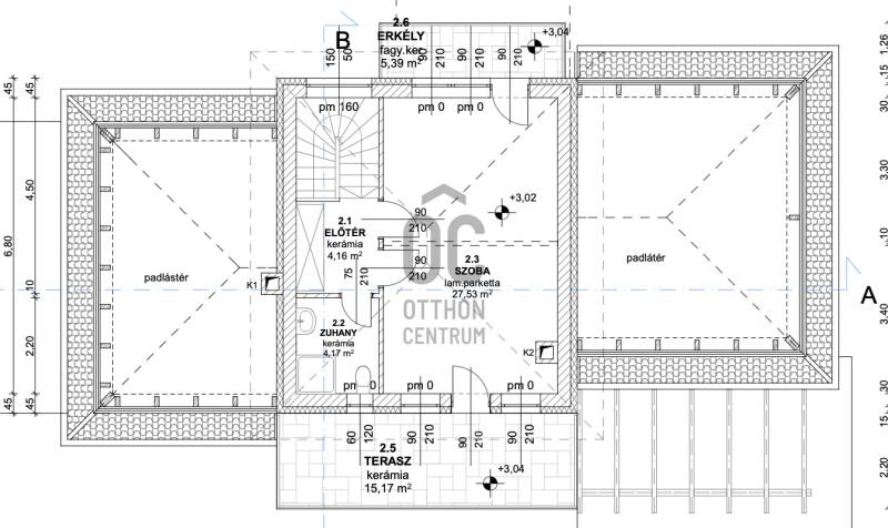
Erkély mérete: 40 m2
Felszereltség: -
Parkolás: -
Kilátás: -
Egyéb extrák:  
-

Részletes leírás

Főbb jellemzők:-1340 m²-es, nagy méretű, rendezett telek-3 szint, praktikus elrendezéssel-Nappali + 3 hálószoba-3 fürdőszoba-nagyméretű, panorámás teraszok-felső szinten külön lakrészElrendezés:Az alsó szinten egy kényelmes, 2 állásos garázs, valamint több tárolóhelyiség biztosít bőséges pakolási lehetőséget.A földszinten található a tágas nappali, a konyha, valamint 2 hálószoba és 2 fürdőszoba. Innen érhetők el a nagy méretű teraszok, amelyek ideálisak pihenésre és kikapcsolódásra.Az emeleten egy külön élettér került kialakításra: nappali és háló egyben, saját fürdőszobával. Ez a megoldás kifejezetten ideális nagyobb gyermekkel rendelkező családok számára, ahol fontos az önálló élettér biztosítása.Műszaki tartalom:-2018-ban épült-napelem rendszer-NOBO norvég fűtőpanelek-GREE inverteres klímák Környezet és elhelyezkedés:Az ingatlan rendkívül csendes, nyugodt környezetben található, sok zöldfelülettel körülvéve. A közelben, Budaörs irányában több bevásárlóközpont is könnyen elérhető, így a mindennapi élethez szükséges infrastruktúra gyorsan rendelkezésre áll.Ez az ingatlan tökéletes választás családok számára, akik tágas, jól élhető otthont keresnek természetközeli környezetben, ugyanakkor fontos számukra a város közelsége és a kényelmes megközelíthetőség.

 Hirdető adatai

Hirdető neve: Otthon Centrum
Kapcsolattartó: Bényei Lilla
Hirdető telefonszáma: +36 70 461 9751
Honlap: -