Budapest, VII.kerület


 

Ingatlan adatai

Irányár: 54 999 000 Ft
Típus: lakás (tégla)
Kategória: eladó
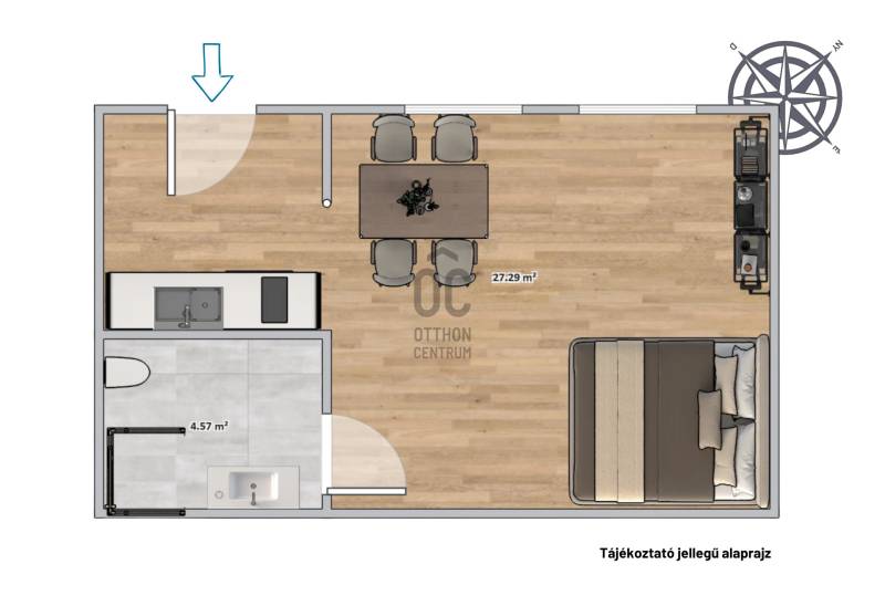
Alapterület: 30 m2
Fűtés: elektromos
Állapota: -
Szobák száma: 1
Építés éve: -
Szintek száma: -
Telekterület: -
Kert mérete: -
Erkély mérete: -
Felszereltség: -
Parkolás: -
Kilátás: udvari
Egyéb extrák:  
-

Részletes leírás

A VII. kerület szívében, keresi új tulajdonosát egy 30 m2-es, élhető és jó berendezhető terekkel rendelkező, azonnal birtokba vehető, 1 szobás lakás. Ideális választás azoknak, akik fiatalos saját otthont, vagy könnyen bérbe adható kislakást keresnek és szeretik a város lüktetését, értékelik a klasszikus bérházi hangulatot. KÖRNYÉK és KÖZLEKEDÉS: ➡️ Budapest VII. kerülete, Középső-Erzsébetváros ➡️ Kiváló infrastruktúrával és tömegközlekedéssel rendelkező, pezsgő mégis élhető környék. ➡️ A Keleti pályaudvar 5 perces sétatávolság, ahol többféle közlekedési lehetőség biztosítja a gyors és kényelmes eljutást a város bármely pontjára. ➡️ M2 és M4 metróvonal, számos villamos, troli és buszjárat, valamint nemzetközi és belföldi vasúti kapcsolat is rendelkezésre áll. ➡️ A közvetlen környezetben több iskola, óvoda, orvosi rendelő, gyógyszertár, több játszótér, park és közösségi tér is található. ➡️ Gyorsan elérhető a Metropolitan Egyetem, az ELTE és a Semmelweis karai, könyvtár, edzőtermek és művelődési ház. ➡️ Kikapcsolódáshoz közel van a Puskás Aréna és a Városliget is. ➡️ Vásárolni a közeli boltokon kívül az Aréna Mall és a Garay Center lehet jó választás. ➡️ Parkolás közterületen, fizetős övezetben megoldható. A HÁZ PARAMÉTEREI: ➡️ 1900-as évek elején épült, keskeny udvaros, 3 emeletes, gangos téglaépület. ➡️ A ház statikailag rendben van, a lépcsőház karbantartott, a homlokzat szép, a közös terek rendezettek. ➡️ Nyugodt és biztonságos, klasszikus pesti bérház kiváló lakóközösséggel. ➡️ A társasház lifttel nem rendelkezik. FONTOS INFÓK A LAKÁSRÓL: ➡️ 1. emeleti, tulajdoni lapon 30, mérés alapján 32 m2-es, 1 szobás, fiatalos ingatlan. ➡️ 2019-ben lett teljeskörűen felújítva, ennek dokumentációja rendelkezésre áll. ➡️ A lakás állapota jó, a nagy belmagasság és a hatalmas ablakok tágas térérzetet biztosítanak. ➡️ A konyha modern és gépiesített (elektromos főzőlap, elszívó, elektromos sütő, mosogatógép, mikró, beépített hűtő). ➡️ A zuhanykabinnal és mosógéppel felszerelt fürdőszoba és a WC egy helyiségben kapott helyet. ➡️ A tágas lakószoba világos, dél-nyugati tájolásának köszönhetően. ➡️ A modern műanyag kialakítású nyílászárók redőnnyel és szúnyoghálóval felszereltek. ➡️ A lakás fűtése elektromos rendszerű, de a gázcsonk is rendelkezésre áll, tehát ha az új tulajdonos alakítani szeretné, megteheti. ➡️ A hűtéséről hűtő-fűtő légkondicionáló gondoskodik. ➡️ A havi rezsi összesen kb.25.000 Ft, a közös költség 15.000 Ft. ➡️ A gépesített konyhabútor és a lakásban lévő bútorzat a vételár részét képezi. EGYÉB: ➡️ A lakás jelenleg nem lakott, gyorsan költözhető. ➡️ Saját célra kényelmes otthon, bérbeadási céllal értékálló befektetés lehet. ➡️ Az Airbnb megengedett a házban, de a hosszú távú bérlők és az egyetemisták is kedvelik a környéket. AZ INGATLAN MEGTEKINTHETŐ: ➡️ Személyesen ➡️ Online személyes bejelentkezéssel FINANSZÍROZÁSBAN – ONLINE ÜGYINTÉZÉSSEL IS – SEGÍTÜNK! ✅ Bank-független hitelcenterünk díjmentesen versenyezteti az összes bank és hitelintézet ajánlatát. ✅ Önnek csak annyi a dolga, hogy egyeztet munkatársunkkal, majd kiválasztja a hosszú távon is legkedvezőbb konstrukciót. ✅ Szakértőink 20 év tapasztalattal, fogyasztóbarát lakáshitelekkel, babaváró hitellel és teljes körű CSOK Plusz és OTTHON START program ügyintézéssel várják. ✅ Időpont-egyeztetéssel munkaidő után is elérhetők.Érdeklődés esetén kérem keressen bizalommal! Kérdéseire szívesen válaszolok.Ez az ingatlan a \"Felező csomag\" megbízási portfólióhoz tartozik. Részletek az Otthon Centrum weboldalán.

 Hirdető adatai

Hirdető neve: Otthon Centrum
Kapcsolattartó: Alföldi-Szabó Erika
Hirdető telefonszáma: +36 70 412 3181
Honlap: -