Budapest, XIII.kerület


 

Ingatlan adatai

Irányár: 88 900 000 Ft
Típus: lakás (újépítésű)
Kategória: eladó
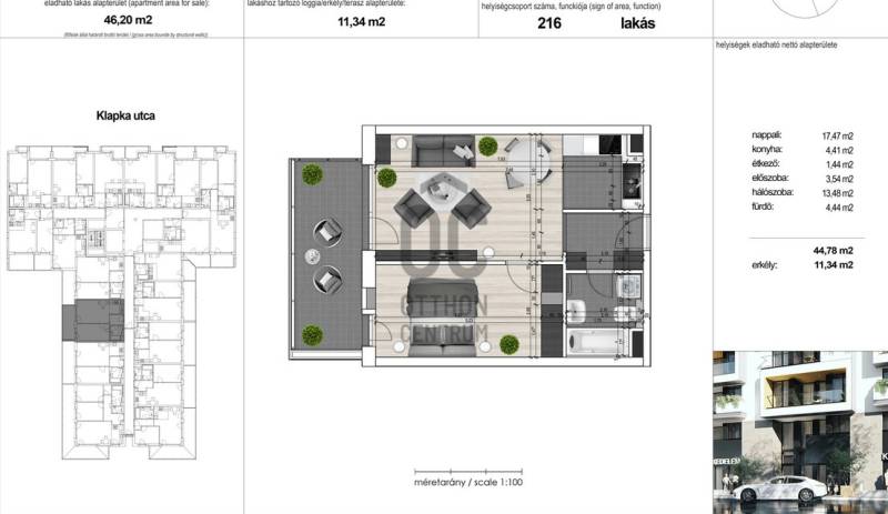
Alapterület: 45 m2
Fűtés: -
Állapota: új
Szobák száma: 2
Építés éve: 2026
Szintek száma: -
Telekterület: -
Kert mérete: -
Erkély mérete: 11 m2
Felszereltség: -
Parkolás: -
Kilátás: kertre néző
Egyéb extrák:  
-

Részletes leírás

ELADÓ MODERN ÚJ ÉPÍTÉSŰ LAKÁS ERKÉLLYEL – XIII. KERÜLET, KLAPKA UTCABudapest XIII. kerületének egyik dinamikusan fejlődő részén, a Klapka utcában kínálunk megvételre egy kiváló elosztású, új építésű lakást.A 45 m²-es, nappali + 1 hálós elrendezésű ingatlan a 2. emeleten helyezkedik el, praktikus kialakításának köszönhetően ideális választás akár saját célra, akár befektetésnek.A lakáshoz egy 11,34 m²-es erkély tartozik, amely kellemes lehetőséget nyújt pihenésre vagy akár egy kisebb kültéri élettér kialakítására.Az épület modern műszaki tartalommal készül, különlegessége a geotermikus hűtési-fűtési rendszer, amely energiatakarékos és környezetbarát megoldást biztosít, miközben magas komfortérzetet nyújt egész évben.Garázs vásárolható!5% áfa visszaigényelhető!A lakáshoz igény esetén gépkocsibeálló is vásárolható.Műszaki átadás várható ideje: 2026 vége.Ez az ingatlan kiváló lehetőség egy fejlődő környéken, stabil értékállósággal és jó kiadhatósággal.További információért és részletekért keressen bizalommal!

 Hirdető adatai

Hirdető neve: Otthon Centrum
Kapcsolattartó: Frimmel Mariann
Hirdető telefonszáma: +36 70 716 9826
Honlap: -