Somogy megye, Siófok


 

Ingatlan adatai

Irányár: 300 000 Ft/hó
Típus: lakás (tégla)
Kategória: kiadó
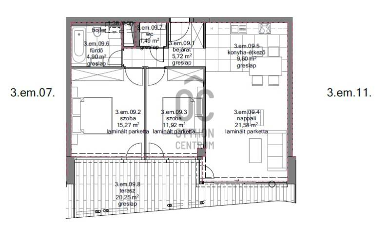
Alapterület: 71 m2
Fűtés: -
Állapota: -
Szobák száma: 3
Építés éve: 2020
Szintek száma: -
Telekterület: -
Kert mérete: -
Erkély mérete: 22 m2
Felszereltség: -
Parkolás: -
Kilátás: kertre néző
Egyéb extrák:  
-

Részletes leírás

Siófok legkedveltebb részén az Ezüstparton kiadó egy bútorozott netto 71 nm es nappali+ 2 hálószobás 3. emeleti nyugati fekvésű ingatlan.Fűtése a legkorszerűbb hőszivattyús fűtéssel megoldott, a hűtésről helyiségenként klíma gondoskodik. Internet hozzáférés, TV szolgáltatás bekötve.A bérleti idő fix 1 év, 2026 06.01 - 2027. 05.31 ig.Bérleti díj: 300 000 Ft /hó +rezsi Kaució mértéke : 2 havi bérleti díjA társasház közvetlenül a Balaton partján található, közvetlen kijáróval a szabadstrandra. A társasház kertjében fűtött medence, kerékpártároló áll rendelkezésre.A lakáshoz 1 db felszíni beálló tartozik.

 Hirdető adatai

Hirdető neve: Otthon Centrum
Kapcsolattartó: Harsányi Bali Erzsébet
Hirdető telefonszáma: +36 70 412 3666
Honlap: -