Veszprém megye, Veszprém


 

Ingatlan adatai

Irányár: 119 690 000 Ft
Típus: lakás (újépítésű)
Kategória: eladó
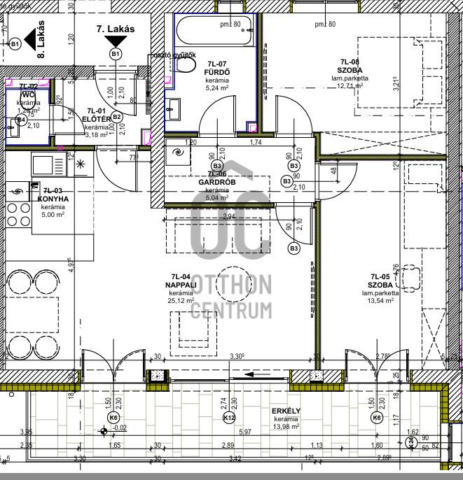
Alapterület: 88 m2
Fűtés: -
Állapota: új
Szobák száma: 3
Építés éve: 2026
Szintek száma: -
Telekterület: -
Kert mérete: -
Erkély mérete: -
Felszereltség: -
Parkolás: -
Kilátás: utcai
Egyéb extrák:  
-

Részletes leírás

Különleges ajánlat: az első 2 lakás tulajdonosa ingyen felszíni beállót kap ajándékba.Modern, igényesen kivitelezett lakások zárt, biztonságos udvarban, nyugodt környezetben – ideális választás családok számára.Főbb jellemzők:-Átgondolt, praktikus elrendezés, a lakás alapterülete 72,15 nm-Saját, 8,85 nm-es tároló minden lakáshoz-Tágas, 1308 nm-es telek-Minőségi anyaghasználat és esztétikus burkolatokMűszaki tartalom:-fűtése hőszivattyúval megoldott, így rendkívül költséghatékony a fenntartása-3 rétegű hőszigetelt műanyag ablakok fém külső borítással-árnyékolás elektromos zsalúziával megoldott-falazata 30 cm tégla, rajta 18 cm Austrotherm grafit hőszigetelés-lakásválaszfal: 5 cm YTONG PEF előfalazó, 25 cm Porotherm 25 AKU Z, 5 cm YTONG PEF előfalazó-közbenső födém: 30 cm vasbeton, 7,5 cm aljzatbeton, 6 cm Austrotherm EPS AT-L2 lépésálló hangszigetelés, padlófűtés, burkolat-zárófödém: 1 rtg. páraáteresztő fólia, 15 cm ásványgyapot hőszigetelés faszerkezet között, 10 cm ásványgyapot hőszigetelés faszerkezet között, 1 rtg. párazáró fólia, 2 rtg. 12,5 mm RF tűzgátló gipszkarton burkolat bordavázon-tető fedése Bramac cserép-villany mérete lakásonként 3x20A + 3x10A H tarifaMiért érdemes választani:-Modern, energiatakarékos otthon-Biztonságos, zárt udvari elhelyezkedés-Kiváló ár-érték arány-Élhető, jól kialakított terekÁtadási határidő: 2026.09.30.Felszíni parkoló 3M Ft-ért vásárolható hozzá!Ne maradjon le róla – az ingyenes beálló csak az első 2 lakás vásárlójának jár.BANKFÜGGETLEN hitelben és teljes körű ügyintézésben segítünk!

 Hirdető adatai

Hirdető neve: Otthon Centrum
Kapcsolattartó: Gacza-Nagy Regina
Hirdető telefonszáma: +36 70 388 5976
Honlap: -