Budapest, XIV.kerület


 

Ingatlan adatai

Irányár: 114 990 000 Ft
Típus: ház
Kategória: eladó
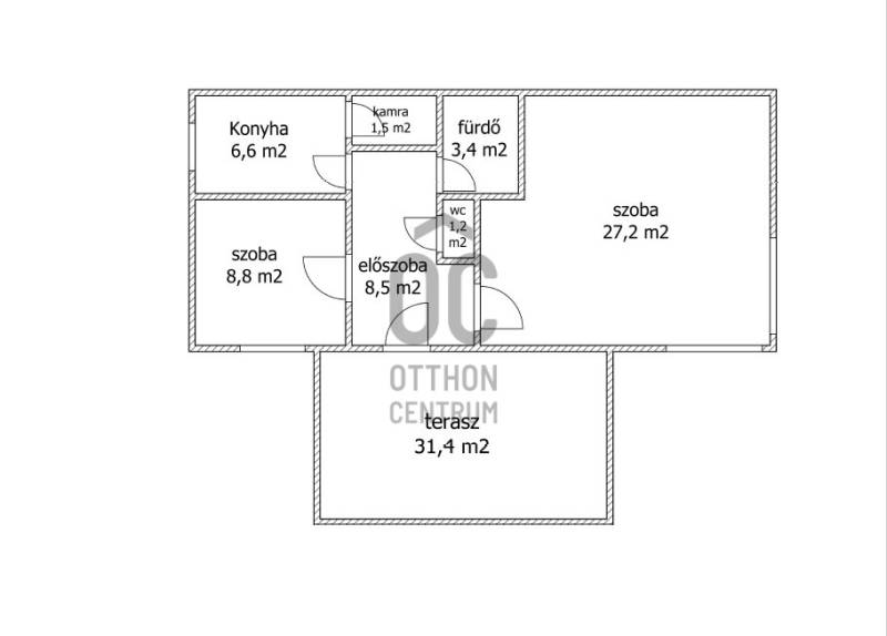
Alapterület: 71 m2
Fűtés: gáz (cirko)
Állapota: -
Szobák száma: 2
Építés éve: 1959
Szintek száma: -
Telekterület: 396 m2
Kert mérete: 396 m2
Erkély mérete: -
Felszereltség: -
Parkolás: -
Kilátás: -
Egyéb extrák:  
-

Részletes leírás

Fedezze fel ezt a kivételes lehetőséget, amely egy tökéletes otthont kínál családok számára a Zugló szívében! Az ingatlan, amely a figyelmébe ajánlok , egy 71 négyzetméteres, közepes állapotú családi ház Budapest 14. kerületének csendes, mégis központi elhelyezkedésű részén található. Alsórákos városrészében, egy felkapott környéken helyezkedik el, ahol a kertvárosi élet minden előnyét élvezheti. Az ingatlanban két szoba található, melyek világosak és barátságosak, ideális teret biztosítva a család számára. A ház állapota átlagos, így lehetősége van saját ízlése szerint alakítani, bővítési lehetőség is adott, amely lehetővé teszi, hogy a jövőben a család igényeihez igazítsa az otthonát. A kertben fúrt kút található ami a locsolás szempontjából nagyon előnyös. Az ingatlanhoz tartozik egy fürdőszoba, valamint egy garázs is, amely kényelmét szolgálja. A fűtés gáz (cirko) rendszerrel megoldott, a nyári hónapokban pedig a klíma biztosítja a kellemes hőmérsékletet. A környék adottságai páratlanok; csendes utcák, barátságos szomszédok és zöld területek jellemzik a környéket, ideális helyszínt biztosítva a családok számára. A közlekedés szempontjából is kedvező a helyzet, hiszen a város tömegközlekedési lehetőségei könnyen elérhetők, így a napi ingázás nem jelenthet problémát. Az autós közlekedés is egyszerű, hiszen a közeli főbb útvonalak gyors hozzáférést biztosítanak a város többi részéhez. Ez a tehermentes ingatlan nemcsak otthonnak, hanem befektetési lehetőségnek is kiváló választás. A környék folyamatosan fejlődik, így a jövőbeli értéknövekedés is biztosított. A szomszédságban számos bolt, iskola és egyéb szolgáltatás található, amelyek megkönnyítik a mindennapi életet. Amennyiben kérdései merülnének fel az ingatlannal kapcsolatban, ne habozzon bizalommal keresni. Készen állok arra, hogy segítsek Önnek megtalálni álmai otthonát vagy befektetését!

 Hirdető adatai

Hirdető neve: Otthon Centrum
Kapcsolattartó: Posváncz Katalin
Hirdető telefonszáma: +36 70 716 9671
Honlap: -