Baranya megye, Harkány


 

Ingatlan adatai

Irányár: 15 500 000 Ft
Típus: nyaraló
Kategória: eladó
Alapterület: 90 m2
Fűtés: elektromos
Állapota: -
Szobák száma: 3
Építés éve: 1980
Szintek száma: -
Telekterület: 1 421 m2
Kert mérete: 1 421 m2
Erkély mérete: 26 m2
Felszereltség: -
Parkolás: -
Kilátás: -
Egyéb extrák:  
-

Részletes leírás

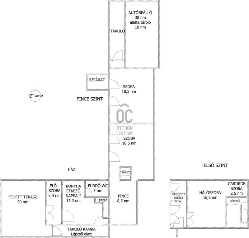
Harkányban a Tenkes csárda alatti dombon eladó egy lakható kisház nagy udvarral. A terület hivatalosan zártkert, de művelés alól kivett terület, 1421 négyzetméter, Van rajta egy 50 négyzetméteres kisház, 20 négyzetméteres fedett terasszal, és egy 45 négyzetméteres melléképület, amiben fél-szuterén szinten van két szoba, és egy pince. Két tárolóban lehet elhelyezni a kerti dolgokat, és két kocsinak van kialakítva autóbeálló.- Nagy fedett terasza van, - víz be van kötve, - H tarifa, vezérelt áram, és 32 A áll rendelkezésre,- Szennyvíztartálya 6 m3-es, - egy ciszterna is rendelkezésre áll,- a házban, és a melléképületben is hűtő-fűtő légkondi került kialakításra, ami befűti az egész teret, ez mellett a házban egy fatüzelésű kandallóval is lehet fűteni. - Az ablakok többsége műanyag, a belső térben a belmagasság 245 cm,- a konyha szép modern kialakítású, kényelmes, mosogatógéppel, villanytűzhellyel,- a fürdőszoba és a wc egy helyiségben van, zuhanyfülkés, - az emeletre, a tetőtérbe vezető lépcső kényelmes, - a hálószobában helyet kapott egy gardrób sarok is, - a hálószobából nyíló beüvegezett erkélyről nagyon szép a kilátás a Szársomlyóra, és a környező házakra, ellátni egészen a Siklósi várig. - a melléképületben két egymásból nyíló szoba található, egy pincével. Ebből a pincéből kis átalakítással a két házrész összenyitható, régen úgy volt. Ez a lakrész járólapozott, műanyag ablakos. Az ingatlan végig kavicsos úton megközelíthető, akár a legnagyobb hóban is. Az ingatlant javaslom nyaralónak, hobbikertnek, mert nagy kert tartozik hozzá. Megfelelő lehet családi háznak is, többen is laknak a környéken. A szomszédok kedvesek, segítőkészek. Hamar birtokba vehető, tehermentes ingatlan. Amennyiben meg szeretné tekinteni, egyeztessünk időpontot!

 Hirdető adatai

Hirdető neve: Otthon Centrum
Kapcsolattartó: Szegedi Szilvia
Hirdető telefonszáma: +36 70 412 5231
Honlap: -