Pest megye, Ráckeve


 

Ingatlan adatai

Irányár: 84 900 000 Ft
Típus: ház
Kategória: eladó
Alapterület: 93 m2
Fűtés: -
Állapota: új
Szobák száma: 4
Építés éve: 2026
Szintek száma: -
Telekterület: 970 m2
Kert mérete: 970 m2
Erkély mérete: 17 m2
Felszereltség: -
Parkolás: -
Kilátás: -
Egyéb extrák:  
-

Részletes leírás

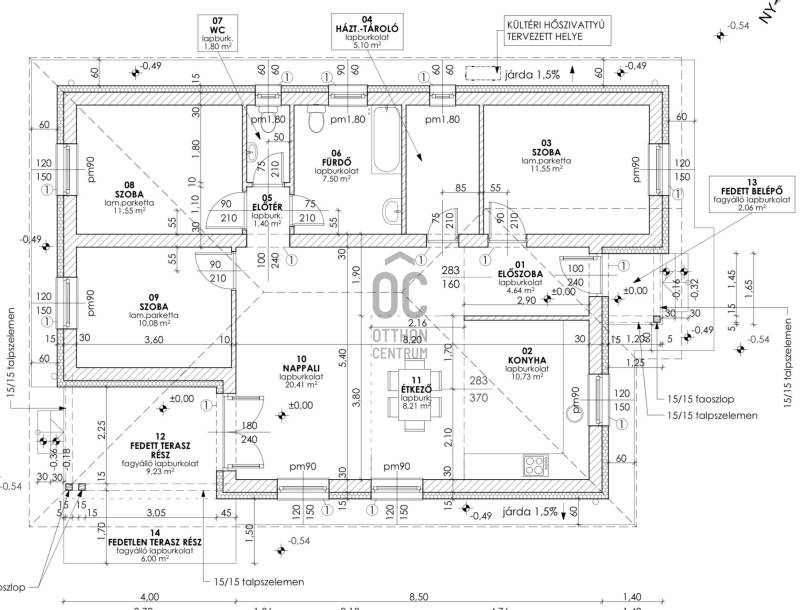
Ráckevén újépítésű családi házHÁZ:- br. 120 nm, nettó 93 nm nappali + 3 szoba- 2026-ben épül- minőségi anyagokból- Porotherm tégla + dryvit szigetelés (15 cm ), Bramac tetőcserép- biztonsági bejárati ajtó, 3 rétegű műanyag nyílászárók- levegő-víz hőszívattyús fűtésrendszer - padlófűtés- Ariston Velis Evo 100 gazdaságos villanybojler- ELECTROLUX KÖZPONTI PORSZÍVÓ- 3,5 KW HŰTŐ-FŰTŐ KLÍMA- választható burkolatok hideg 4000Ft./nm, meleg 4000Ft./nm-ig- remek elosztású , napfényesTELEK:- 970 nm nyeles telek- betonozott autóbeálló, járdák- ELEKTROMOS KAPU- körbekerítveElhelyezkedés:- Budapesttől 40 percre- központi elhelyezkedés- Éttermek, bevásárlási lehetőség, óvoda, iskola valamint a busz kényelmes sétával elérhetőHITEL ÉS CSOK igényelhető! Minden hivatalos ügyintézésben segítünk!20 %-TÓL MÁR MOST FOGLALHATÓ!ÁTADÁS: 2026-10

 Hirdető adatai

Hirdető neve: Otthon Centrum
Kapcsolattartó: Andreopulos Niki
Hirdető telefonszáma: +36 70 716 8706
Honlap: -