Budapest, XIII.kerület


 

Ingatlan adatai

Irányár: 133 000 000 Ft
Típus: lakás (tégla)
Kategória: eladó
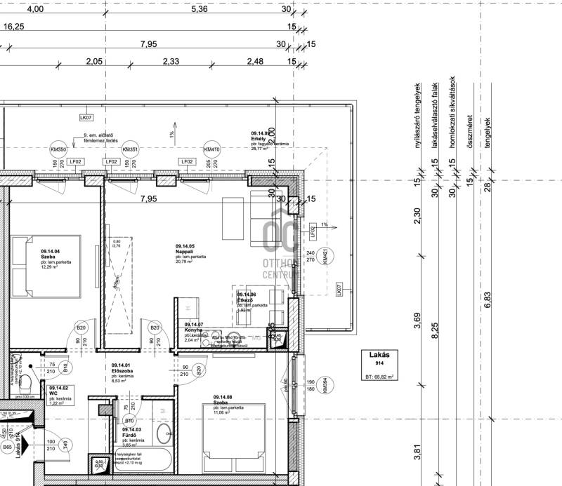
Alapterület: 62 m2
Fűtés: -
Állapota: -
Szobák száma: 3
Építés éve: 2023
Szintek száma: -
Telekterület: -
Kert mérete: -
Erkély mérete: 29 m2
Felszereltség: -
Parkolás: -
Kilátás: utcai
Egyéb extrák:  
-

Részletes leírás

Eladó a 13. kerületben egy 9. emeleti, körpanorámás PENTHOUSE lakás, amely minden napszakban különleges hangulatot kínál! Az ingatlan körbenapozott, a nagyméretű üvegfelületeknek köszönhetően pedig rendkívül világos!A lakás egyik legnagyobb értéke a 29 nm-es panorámás terasz, amely ideális pihenésre és kikapcsolódásra, miközben páratlan kilátást biztosít a városra – egészen a Gellért tér irányába is. A tájolásnak köszönhetően a naplemente látványa is kiemelkedő, ami különleges hangulatot ad az esti óráknak.A LAKÁS FŐBB JELLEMZŐI- A nettó 62 nm-es lakás jól átgondolt elosztású, külön nyíló, kényelmesen berendezhető szobákkal, ahol a nappali és az egyik hálószoba közvetlen kapcsolatban áll a 29 nm-es terasszal.- A nap végigkíséri a lakást: reggel az egyik oldalon kel fel, napközben körbesüti az ingatlant, majd a másik oldalon nyugszik le. Az L alakú, 29 nm-es teraszon mindig megtalálod az ideális helyet – legyen szó reggeli kávéról vagy egy esti borozásról, amelyhez a naplemente látványa különleges hangulatot ad.- Az képeken látható állapotban kerül átadásra, a vételár részét képező, magas minőségű, beépített és teljesen gépesített konyhával (fagyasztós hűtő, elektromos főzőlap, légkeveréses sütő, elszívó, mikróhullámú sütő).- Modern, energiatakarékos otthon, amely a ház kiemelt műszaki tartalmának köszönhetően mennyezeti hűtés–fűtéssel és motorosan vezérelhető redőnyökkel került kialakításra.- A fenntartás tervezhető és kedvező, H-tarifás elszámolással működik a téli időszakban, a közös költség pedig mindössze 24.180 Ft, ami a méretéhez és kategóriájához viszonyítva kiemelkedően kedvező.TÁRSASHÁZ- Egy modern lakóépület, amely átgondolt közös terekkel, tágas liftekkel, jól kialakított garázsszinttel és kiépített kamerarendszerrel biztosít kényelmes és biztonságos mindennapokat. - A letisztult homlokzat, a világos lépcsőház és a rendezett környezet igényes, értéktartó lakóközösséget tükröz, ahol valóban jó érzés megérkezni. LEHETŐSÉG- Opcionálisan vásárolható teremgarázs beálló, amely könnyű és kényelmes be- és kiállást biztosít, ára 8.500.000 Ft.- Igény esetén egy 4 nm-es tároló is elérhető 4.000.000 Ft-ért.KÖRNYÉK, KÖZLEKEDÉS- Néhány perces sétatávolságon belül minden elérhető, ami a mindennapi élethez szükséges - Spar, Lidl és Rossmann üzletek, gyógyszertár, óvoda és iskola, valamint a Lehel téri piac, a WestEnd City Center, a Fáy Oxygen Wellness szolgáltatásai, és szabadtéri fitneszparkok is.- A környék kiemelkedő adottságai közé tartozik a szabadidős lehetőségek sokszínűsége is: a Béke téri park, az Országbíró sétány, a Városliget és a Margitsziget egyaránt rövid idő alatt elérhetők, ahogyan a Rákos-patak sétánya is, amely természetközeli kikapcsolódást kínál a város szívében.- A közlekedés kiváló: a 14-es villamos 1 percen belül, a Nyugati pályaudvar és a belváros gyors buszjáratokkal, a Lehel téri metró pedig szintén könnyen megközelíthető.Az ingatlan elhelyezkedése saját használatra és befektetés céljára egyaránt kiemelkedő választás, a környék stabil keresletének és magas értéktartásának köszönhetően.Személyes megtekintés vagy további információ esetén keressen bizalommal.

 Hirdető adatai

Hirdető neve: Otthon Centrum
Kapcsolattartó: Lutter Liza
Hirdető telefonszáma: +36 70 412 3491
Honlap: -