Győr-Moson-Sopron megye, Győr


 

Ingatlan adatai

Irányár: 52 500 000 Ft
Típus: lakás (panel)
Kategória: eladó
Alapterület: 62 m2
Fűtés: távfűtés
Állapota: -
Szobák száma: 3
Építés éve: 1981
Szintek száma: -
Telekterület: -
Kert mérete: -
Erkély mérete: 2 m2
Felszereltség: -
Parkolás: -
Kilátás: utcai
Egyéb extrák:  
-

Részletes leírás

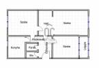
Győr kedvelt városrészében, Adyvárosban kínálunk megvételre egy 62 m²-es, 3 szoba + hallos elrendezésű, jó adottságokkal rendelkező lakást.Az ingatlan praktikus kialakítású: három külön nyíló szoba, tágas fürdőszoba, konyha, külön WC, valamint egy beépített loggia áll rendelkezésre, amely tovább növeli a hasznos életteret.A lakás egy társasház 3. emeletén helyezkedik el, csendes, barátságos lakóközösségben. Főbb jellemzők:•62 m² lakótér •3 szoba + hall •beépített loggia •külön WC •ingyenes parkolás a környéken Elhelyezkedése kiváló: a közelben minden fontos szolgáltatás megtalálható, többek között iskola, óvoda, játszótér, bevásárlási lehetőségek, valamint a Győr Pláza is könnyen elérhető.Az ingatlan kisebb ráfordítással igazán otthonos, kényelmes lakássá alakítható.További információkért vagy megtekintés egyeztetéséhez keressen bizalommal!

 Hirdető adatai

Hirdető neve: Otthon Centrum
Kapcsolattartó: Páter József
Hirdető telefonszáma: +36 70 412 3131
Honlap: -