Budapest, V.kerület


 

Ingatlan adatai

Irányár: 1 207 305 Ft/hó
Típus: kereskedelmi/ipari ingatlan
Kategória: kiadó
Alapterület: 220 m2
Fűtés: -
Állapota: -
Szobák száma: -
Építés éve: -
Szintek száma: -
Telekterület: -
Kert mérete: -
Erkély mérete: -
Felszereltség: -
Parkolás: -
Kilátás: -
Egyéb extrák:  
-

Részletes leírás

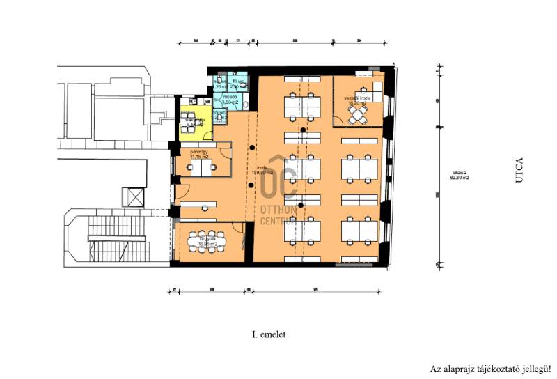
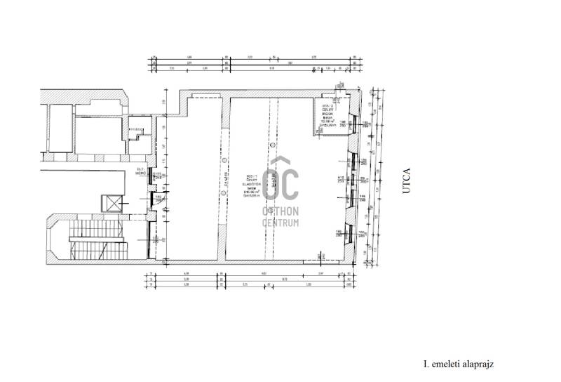
A Kossuth Lajos utca patinás környezetében, a Ferenciek tere és az Astoria között kínálunk bérbeadásra egy klasszikus nagypolgári hangulatú, utcai nézetű ingatlant.A nagy belmagasság, a tágas terek és a karakteres oszlopos kialakítás különleges atmoszférát biztosítanak, amely egyedi megjelenést ad a leendő funkciónak.Az ingatlan emeleti részen helyezkedik el, az alatta lévő földszinti ingatlan szintén bérbe vehető, akár a két szint egybe is nyitható. Ha ez az opció is érdekes lehet kérem jelezze felém.Paraméterek:– 220 m² alapterület– I. emeleti elhelyezkedés– utcai nézet, nagyméretű ablakok– nagypolgári jelleg, nagy belmagasság: 3,99m– oszlopos térstruktúra– jelenlegi állapot: felújítandó, szerkezetig visszabontott– teljes mértékben alakítható– tulajdonosi vállalás a belső kialakításra vonatkozóan: a tulajdonos vállalja az ingatlan alapvető műszaki és esztétikai rendbetételét – vakolt, festett falfelületek, vizesblokk előkészítések, villanyszerelési munkák és a nyílászárók felújítása készül el –, ugyanakkor a végleges belső kialakítás a leendő bérlő koncepciója alapján történik, amelyhez igény esetén szakmai támogatást tudnak nyújtani– az irodai funkcióra készült terv rendelkezésre áll, terv mellékelve a képek közöttBérleti díj/hó: 13 EUR/m² + ÁFAKaució: 2 haviJavasolt hasznosítás:– iroda / kreatív workspace– jóga / pilates stúdió– egészség- és well-being központ, esztétikai központ– oktatási tér / workshop helyszín– design stúdió / ügynökségi térAz ingatlan kiváló lehetőséget kínál olyan bérlők számára, akik egyedi karakterű, belvárosi teret keresnek, és saját igényeik szerint szeretnék kialakítani működési környezetüket. A nagypolgári adottságok és a rugalmas kialakíthatóság lehetővé teszik, hogy az ingatlan hosszú távon értékálló és inspiratív helyszíne legyen bármilyen üzleti vagy szolgáltatói tevékenységnek.

 Hirdető adatai

Hirdető neve: Otthon Centrum
Kapcsolattartó: Kurai Kitti
Hirdető telefonszáma: +36 70 461 9246
Honlap: -