Budapest, III.kerület


 

Ingatlan adatai

Irányár: 225 000 000 Ft
Típus: ház
Kategória: eladó
Alapterület: 110 m2
Fűtés: -
Állapota: új
Szobák száma: 5
Építés éve: 2026
Szintek száma: -
Telekterület: 350 m2
Kert mérete: 350 m2
Erkély mérete: 31 m2
Felszereltség: -
Parkolás: -
Kilátás: -
Egyéb extrák:  
-

Részletes leírás

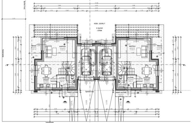
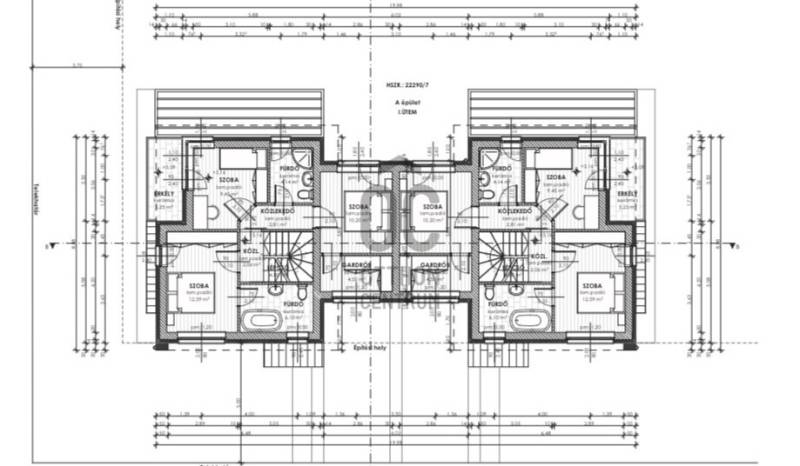
Budapest III. kerületének egyik legkeresettebb, dinamikusan fejlődő részén, Aranyhegyen kínálunk megvételre egy 2026-ban épült, újépítésű ikerház felet, amely ideális választás mindazok számára, akik a nyugodt, zöld környezetet modern, magas műszaki tartalommal ötvözve keresik.Az ingatlan 110 m² lakótérrel rendelkezik, amelyhez egy 350 m²-es saját telekrész tartozik. A kétszintes kialakításnak és az átgondolt alaprajznak köszönhetően a terek világosak, élhetőek és jól szeparáltak. A nappali és a hálószobák ideális elosztása kényelmes otthont biztosít akár nagyobb család számára is.A házban 5 szoba és 2 fürdőszoba található, így minden családtag számára biztosított a privát tér. A déli tájolásnak köszönhetően a belső terek egész nap napfényben úsznak, ami tovább növeli az ingatlan komfortérzetét.A nappaliból közvetlen kijárat nyílik a 26,27 m²-es tágas TERASZRA, amely tökéletes helyszín pihenésre, családi és baráti összejövetelekre. Az emeleten egy 5,25 m²-es ERKÉLY is helyet kapott, amely tovább fokozza az otthon élhetőségét.A modern műszaki tartalom részeként az ingatlan hőszivattyús fűtési rendszerrel felszerelt, amely energiatakarékos és környezetbarát megoldást kínál, alacsony fenntartási költségek mellett.A lakáshoz tartozó garázs opcionálisan megvásárolható, ára 5 millió forint, így a parkolás kényelmesen és biztonságosan megoldható.Aranyhegy különösen kedvelt a családosok körében: zöldövezeti, csendes utcák, tiszta levegő, természetközeli életérzés jellemzi, miközben a város könnyen és gyorsan elérhető. A közelben megtalálható minden szükséges infrastruktúra – bevásárlási lehetőségek, óvodák, iskolák, valamint kiváló közlekedési kapcsolatok. A környék ideális választás azok számára, akik a nyugalmat és a modern városi élet előnyeit egyszerre szeretnék élvezni.Az ingatlan egy csendes, nyugodt, családias környezetben található, ahol a természet közelsége és a friss levegő garantált.Igény esetén bankfüggetlen hitelügyintézéssel, teljes körű CSOK Plusz és Otthon Start Program ügyintézéssel állunk rendelkezésére.

 Hirdető adatai

Hirdető neve: Otthon Centrum
Kapcsolattartó: Simon Nikolett
Hirdető telefonszáma: +36 70 388 5956
Honlap: -